actualité

Comment répondre aux exigences du nouveau PLU Bioclimatique de Paris ?

L’entrée en vigueur du Plan Local d’Urbanisme Bioclimatique (PLUB) de Paris est prévue pour 2025. Ce nouveau cadre réglementaire vise à répondre aux défis contemporains de l’urbanisation durable, en mettant l’accent sur la réduction de l’empreinte carbone et la promotion de pratiques de construction écologiques et innovantes. Dès aujourd’hui, nos projets sont conçus avec le PLU Bioclimatique de Paris. Revenons sur un projet qui s’allie aux nouvelles contraintes qui vont régir la construction intra-muros.

Le choix de la volumétrie

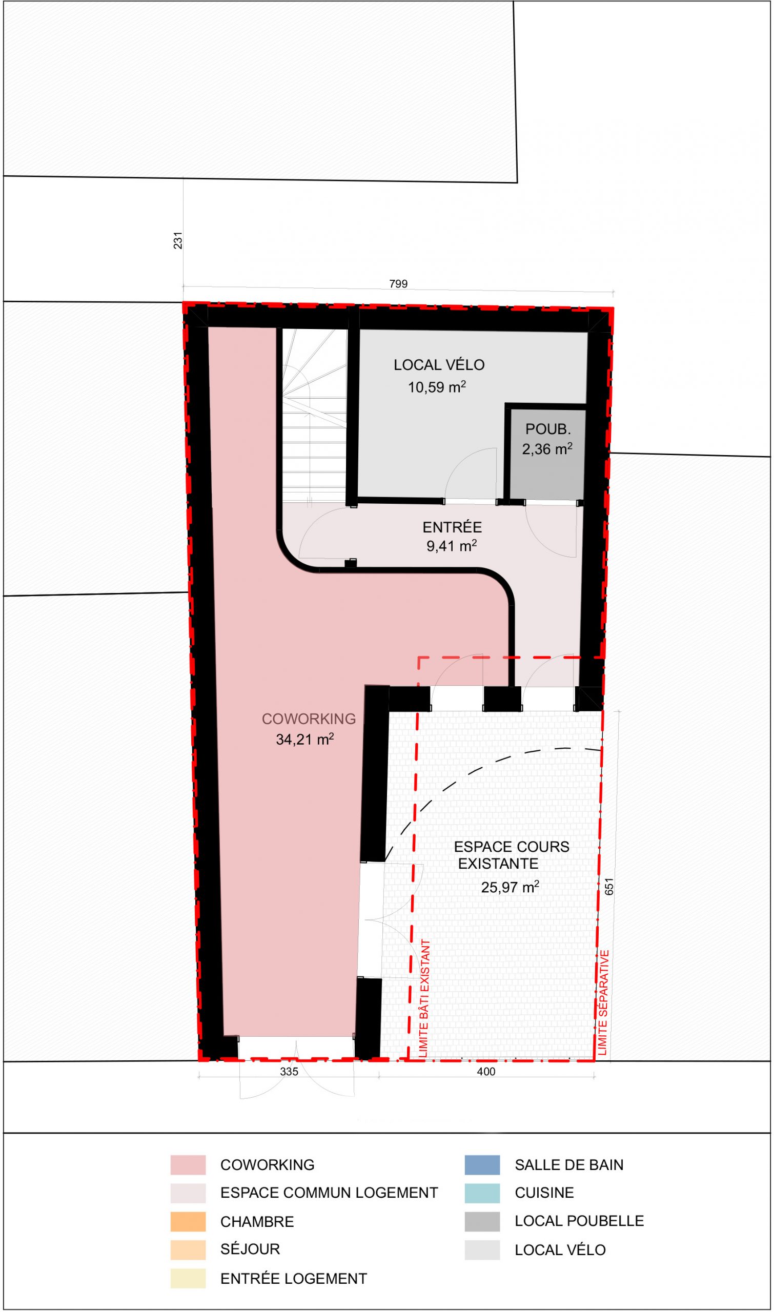
Comme à notre habitude, le souhait de l’agence est de maximiser les potentiels de la parcelle. Cela passe évidemment par une densification de celle-ci, mais une densification raisonnée et inscrite dans l’histoire de la parcelle. En effet, pour toute démolition sur une parcelle parisienne, l’implantation du bâti existant ne peut plus être laissée de côté. Avec le PLUB, il s’agit maintenant de respecter une séquence urbaine « historique » fruit de plusieurs siècles d’urbanisation.

Est-ce la fin de toute rupture possible dans le tissu urbain parisien ? Une séquence urbaine est-elle forcément homogène ? N’est-elle pas également constituée d’accidents ? Il y a sûrement beaucoup à dire sur ces points et les débats sont ouverts… Quoi qu’il en soit, notre projet s’inscrit donc dans l’ancienne volumétrie du bâtiment existant de la parcelle. Par chance, nous décidons de tirer parti de cette

implantation en redonnant à l’espace public une porosité visible et ressentie constituée par une cour.

Valoriser la construction raisonnée

Pour tout projet neuf, le nouveau PLU de Paris impose de respecter au moins trois critères de performance afin de constituer des externalités positives. J’ose espérer que nos projets créent un peu plus que trois externalités positives…Toujours est-il que c’est un moyen pour stimuler les acteurs de la construction afin d’intégrer dans l’acte de concevoir et de construire une dimension écologique qui manque parfois cruellement.

Notre projet propose d’utiliser un matériau millénaire, la terre crue. Matériau écologique par excellence, la terre crue offre des avantages indéniables, mais cette manière de construire sera-t-elle acceptée en plein cœur de la capitale ?

 

 

Un projet ? Nous serons ravis d’échanger avec vous !